São Paulo - SP

REF. IB2552

INDIANÓPOLIS

Prédio

IPTU

R$ 25.000,00
  • 1.650m²

    Área útil

  • 40

    vaga(s)

LOCAÇÃO

R$ 150.000,00

Descrição

Detalhes do Imóvel:
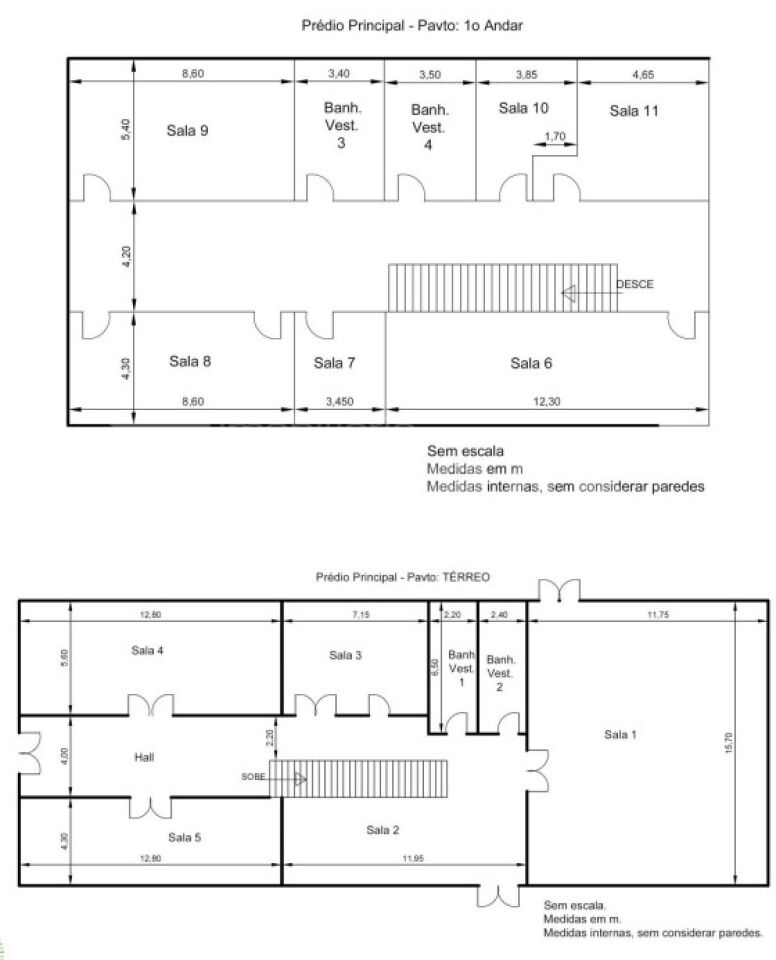
Terreno de esquina área total: 2.880 m², área construída: 1.650 m²
Prédio principal (2 pavimentos + cobertura) ,11 salas amplas e facilmente divisíveis, 4 banheiros / vestiários/ cozinha.

Prédio da entrada (2 pavimentos):
3 salas, 1 banheiro, edícula com 2 pavimentos, amplo jardim + pátio interno, estacionamento interno para mais de 40 veículos .

Excelente oportunidade em imóvel comercial multiuso, ideal para clínicas, hospitais, escritórios ou centros institucionais.
Localização estratégica: Em frente ao antigo Serasa Experian, com fácil acesso às Avenidas dos Bandeirantes, 23 de Maio e Jabaquara, além de estar próximo à estação São Judas do Metrô. Região tranquila, arborizada e completa em serviços, como bancos, correios, escolas, delegacia, padarias e restaurantes.

Potencial para instalação de: clínicas médicas e de estética, hospitais e laboratórios, casas de repouso, buffets ou espaços para festas infantis, consulados e órgãos institucionais, complexos gastronômicos
escritórios, coworkings ou centros administrativos, clubes recreativos ou de jogos, imóvel pronto para uso e com grande potencial de personalização, visibilidade, acessibilidade e infraestrutura completa.

Agende sua visita!





Localização aproximada

Agendar Visita

Simule seu Financiamento

Clique e veja qual instituição financeira oferece a condição que mais
se adequa à sua necessidade: