São Paulo - SP

REF. IB1927

SANTA CECÍLIA

Galpão

IPTU

R$ 5.354,72
  • 1.060m²

    Área útil

LOCAÇÃO

R$ 20.000,00

Descrição

Testada de 9m - Terreno 714m² - Edificada 1.060m²

Térreo: Entrada por duas portas de aço com a altura máxima de abertura das portas de 3,51m de vão livre de entrada.

Vão aberto sem as portas de aço de 3,82m de vão livre.
Ambas as portas teremos a largura de 3 metros.

Pé direito até o forro de 4,10 metros. Telhado é composto de forro de PVC, manta térmica e iluminação própria. A outra parte com laje com capacidade de 1.000 kg por m² e pé direito de 4,30m.

Área extremamente iluminada.
Escritório tem a possibilidade de ter acesso para rua, independente do galpão.

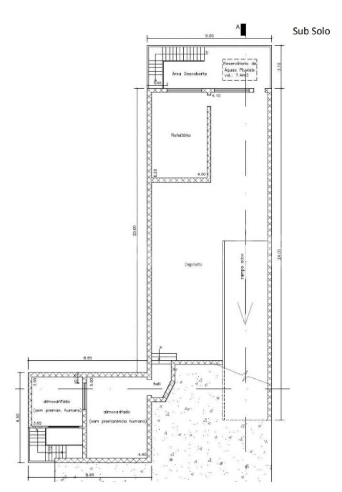
ACESSO AO SUB SOLO:

Composto com 3 salas amplas
Acesso com rampa, com largura de 3,20m.
Pé direito de 3,36m de altura debaixo da laje.
Piso de alta resistência.

Diferenciais:
- Pé-direito variando entre 4,10 m e 4,30 m
- Duas portas de aço com 3,51 m de altura para acesso ao galpão
- Piso resistente para até 1.000 kg/m²
- Subsolo amplo com 3 salas e rampa de acesso (3,36m de altura x 3,20m de largura)
- Telhado com PVC, manta térmica e iluminação própria
- 3 banheiros/vestiários + copa/cozinha
- Escritório com acesso independente para rua.

Agende sua visita!

A Imobiliária Balbás está há 18 anos no mercado, especializada em imóveis de alto padrão, com foco na região do Tatuapé, Vila Formosa, Vila Carrão, Anália Franco e Mooca. Com um portfólio de imóveis composto por casas, apartamentos, sobrados e imóveis para fins comerciais e residenciais, também atuam na parte de compra, venda, locação e administração de imóveis. Com tradição, qualidade no atendimento, transparência e muita experiência no mercado imobiliário.

Imobiliária Balbás competência que inspira confiança!

Localização aproximada

Agendar Visita

Simule seu Financiamento

Clique e veja qual instituição financeira oferece a condição que mais
se adequa à sua necessidade: